Шоу-рум: округ Мытищи, д. Пирогово, ул. Совхозная, участок 18 (открыть на Яндекс.Картах)
Производство: г.Мытищи, ул. Челюскинский карьер, д.2 (открыть на Яндекс.Картах)
Время работы: ежедневно 9:00-18:00


Меню
Шоу-рум: округ Мытищи, д. Пирогово, ул. Совхозная, участок 18 (открыть на Яндекс.Картах)
Производство: г.Мытищи, ул. Челюскинский карьер, д.2 (открыть на Яндекс.Картах)
Время работы: ежедневно 9:00-18:00
Типовой пример автоматизации объекта выглядит следующим образом:

Линия монтажа приводной рейки проходит посередине секционных ворот. Если монтаж не может быть выполнен посередине ворот, то допускается монтаж на расстоянии не более 100 мм слева или справа от середины ворот. Соответственно, необходимо планировать место для монтажа рейки и привода в соответствии с их габаритами.
|
необходимое пространство для монтажа, мм |
|
|
Привод LG + рейка LGR-3300С(B) |
3650 |
|
Привод LG + рейка LGR-3600С(B) |
3950 |
|
Привод LG + рейка LGR-4200C(B) |
4550 |
|
ASG600/3KIT-L (рейка в комплекте) |
3700 |
|
ASG1000/3KIT-L (рейка в комплекте) |
3700 |
|
ASG1000/4KIT (рейка в комплекте) |
4400 |
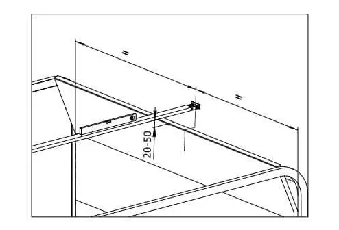
Зазор между рейкой и максимальной (верхней) точкой движения полотна ворот должен быть 20-50 мм.

Крепления в комплекте автоматики для секционных ворот обеспечивают расстояние от рейки до потолка до 110 мм, в случае большего расстояния необходимо применить дополнительные полосы крепления (не входят в комплект).
Максимальное расстояние от верхней точки движения ворот до потолка должно быть не более 190 мм.
Наши консультанты помогут с выбором и ответят на все вопросы.
Звоните: +74992291717
Мы можем перезвонить или напишите чат
Вы можете самостоятельно рассчитать примерный бюджет на покупку с помощью нашего калькулятора.